Dom z bala DM-9
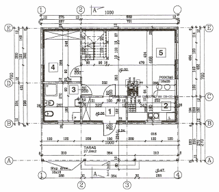
Rzut parteru
| Pomieszczenie | Powierzchnia |
|---|---|
| Wiatrołap | 5,4 m2 |
| Aneks kuchenny | 6,2 m2 |
| Łazienka | 7,0 m2 |
| Pokój dzienny | 9,5 m2 |
| Pokój dzienny | 31,2 m2 |
| Razem | 59,3 m2 |
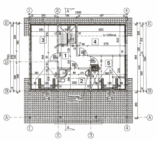
Rzut poddasza
| Pomieszczenie | Powierzchnia |
|---|---|
| Przedpokój | 6,0 m2 |
| Łazienka | 4,7/6,4 m2 |
| Sypialnia | 15,2/16,9 m2 |
| Sypialnia | 12,0/14,6 m2 |
| Sypialnia | 9,6/10,9 m2 |
| Razem | 47,5/54,8 m2 |
Elewacje



