Dom z bala DM-8
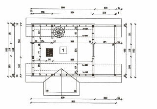
Rzut parteru
| Pomieszczenie | Powierzchnia |
|---|---|
| Łazienka | 2,4 m2 |
| Pokój dzienny | 16,5 m2 |
| Aneks kuchenny | 4,3 m2 |
| Taras | 10,0 m2 |
| Razem | 33,2 m2 |
Rzut poddasza
| Pomieszczenie | Powierzchnia |
|---|---|
| Pomieszczenie | 17,5/23,3 m2 |
Elewacje




| Pomieszczenie | Powierzchnia |
|---|---|
| Łazienka | 2,4 m2 |
| Pokój dzienny | 16,5 m2 |
| Aneks kuchenny | 4,3 m2 |
| Taras | 10,0 m2 |
| Razem | 33,2 m2 |
| Pomieszczenie | Powierzchnia |
|---|---|
| Pomieszczenie | 17,5/23,3 m2 |



