Dom z bala DM-5
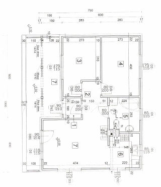
Rzut parteru
| Pomieszczenie | Powierzchnia |
|---|---|
| Wiatrołap | 1,9 m2 |
| Hall | 4,5 m2 |
| Sypialnia | 10,0 m2 |
| Sypialnia | 11,7 m2 |
| Łazienka | 5,4 m2 |
| Kuchnia | 5,4 m2 |
| Pokój dzienny | 17,1 m2 |
| Razem | 56,0 m2 |
Elewacje




| Pomieszczenie | Powierzchnia |
|---|---|
| Wiatrołap | 1,9 m2 |
| Hall | 4,5 m2 |
| Sypialnia | 10,0 m2 |
| Sypialnia | 11,7 m2 |
| Łazienka | 5,4 m2 |
| Kuchnia | 5,4 m2 |
| Pokój dzienny | 17,1 m2 |
| Razem | 56,0 m2 |



