Dom z bala DM-36
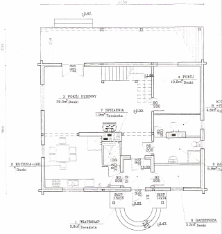
Rzut parteru
| Pomieszczenie | Powierzchnia |
|---|---|
| Wiatrołap | 3,8 m2 |
| Kuchnia + jadalnia | 16,8 m2 |
| Pokój dzienny | 39,0 m2 |
| Pokój dzienny | 10,9 m2 |
| Łazienka | 5,9 m2 |
| Garderoba | 5,3 m2 |
| Spiżarnia | 1,9 m2 |
| Kotłownia | 4,6 m2 |
| Razem | 88,2 m2 |
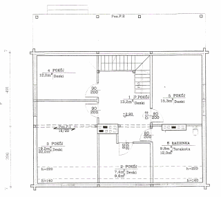
Rzut poddasza
| Pomieszczenie | Powierzchnia |
|---|---|
| Przedpokój | 13,2 m2 |
| Sypialnia | 7,4 m2 |
| Sypialnia | 19,2 m2 |
| Sypialnia | 12,0 m2 |
| Sypialnia | 15,5 m2 |
| Łazienka | 10,0 m2 |
| Razem | 73,3 m2 |
Elewacje



