Dom z bala DM-34
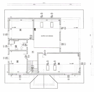
Rzut parteru
| Pomieszczenie | Powierzchnia |
|---|---|
| Wiatrołap | 6,6 m2 |
| Hall | 25,5 m2 |
| Sypialnia | 13,3 m2 |
| Łazienka | 8,3 m2 |
| Toaleta | 1,4 m2 |
| Sypialnia | 18,2 m2 |
| Salon | 32,2 m2 |
| Kuchnia | 14,7 m2 |
| Razem | 120,2 m2 |
Rzut poddasza
| Pomieszczenie | Powierzchnia |
|---|---|
| Galeria | 11,0 m2 |
| Sypialnia | 14,1/15,0 m2 |
| Łazienka | - m2 |
| Sypialnia | 13,9/16,2 m2 |
| Sypialnia | 26,0/30,9 m2 |
| Razem | 71,7/81,8 m2 |
Elewacje



