Dom z bala DM-1
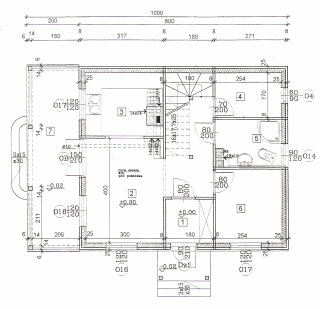
Rzut parteru
| Pomieszczenie | Powierzchnia |
|---|---|
| Wiatrołap | 3,0 m2 |
| Salon + hall | 20,4 m2 |
| Kuchnia | 7,1 m2 |
| Schowek | 4,3 m2 |
| Łazienka | 4,3 m2 |
| Sypialnia | 7,3 m2 |
| Razem | 46,4 m2 |
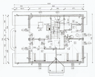
Rzut poddasza
| Pomieszczenie | Powierzchnia |
|---|---|
| Hall | 6,0 m2 |
| Łazienka | 4,0 m2 |
| Sypialnia | 8,7/10,2 m2 |
| Sypialnia | 8,0/9,5 m2 |
| Sypialnia | 7,4/9,2 m2 |
| Garderoba | 2,2/3,7 m2 |
| Razem | 36,3/42,6 m2 |
Elewacje



